Környezetbarát építőanyagok, egyszerű épületgépészet
2011/7-8. lapszám | Kazinczy Gyöngyvér | 3949 |
Figylem! Ez a cikk 15 éve frissült utoljára. A benne szereplő információk mára aktualitásukat veszíthették, valamint a tartalom helyenként hiányos lehet (képek, táblázatok stb.).
Az egy gyermekes házaspár tél elején keresett fel, miután az egy korábban írt cikkemben szereplő, minimális hőigényű, légfűtéssel működő házakról, az ún. bio-szolár házakról olvastak.
Az első megbeszélés, kölcsönös ismerkedés után hamarosan megrendelték a környezetbarát anyagokból megtervezett, alacsony energiájú családi házat. A tervezés folyamán a költségek alakulását szinte „vonalanként” nyomon követtük, így azonnal látható volt, hogy néhány cm2-nek is milyen hatása van a végösszeg alakulására. A fenntarthatóság 3 alappillére (1. környezettudatosság, 2. energiatudatosság, 3. gazdaságosság) így egyformán kiemelt és fontos szerepet kapott. A tervezés során éppen a gazdasági okok miatt két verzió is készült. Az első terveknél teljes tetőtér-beépítést terveztünk, amely a 20 éves, már függetlenedő gyermeknek lett kialakítva. A kivitelező által adott árajánlat miatt azonban a tetőtér-beépítésről le kellett mondani, és így a földszinten oldottuk meg a teljes családnak egymás magánéletét tiszteletben tartó, békés együttélését biztosító, az anyagi korlátok szabta lehetőségeken belül a számukra legtökéletesebb alaprajzot.
Helyszín
A telek Sukoró településen, egy meredek hegyoldalon, az erdő közvetlen szomszédságában, inspiráló környezetben helyezkedik el, csodálatos panorámával a Velencei-tóra.
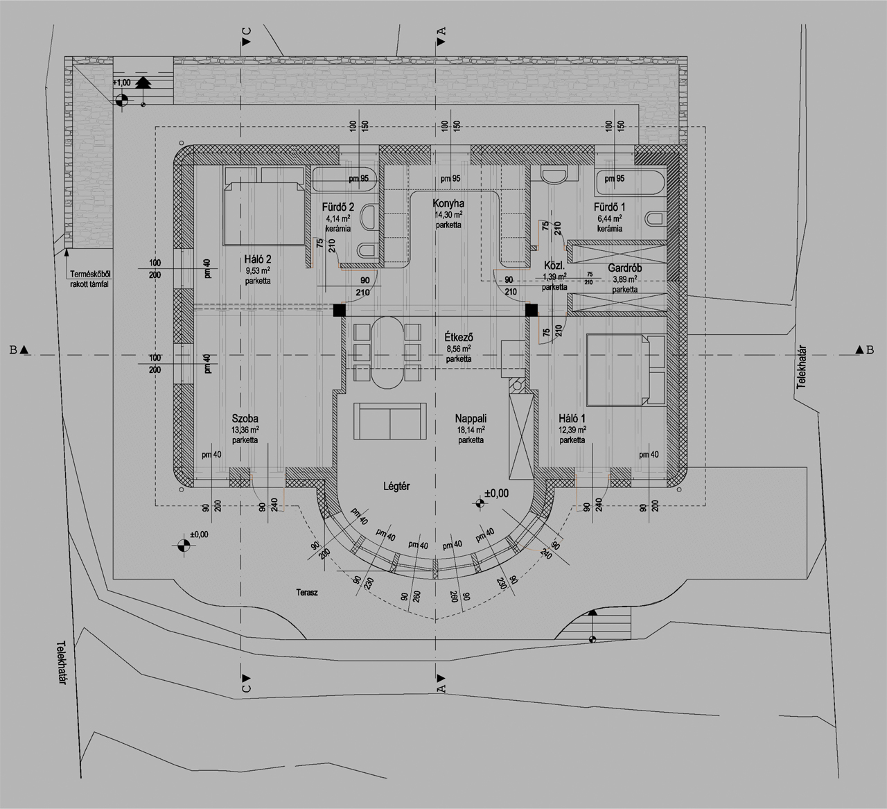
1. ábra Alaprajz
Energiatudatos épületkialakítás
A telek délkeleti lejtése szerencsés tájolást tett lehetővé. Kompromisszumok nélkül nyithattuk meg a délkeleti és délnyugati felületeket nyílászárókkal a panoráma irányába. A helyes klímazónás alaprajzi elrendezés is adta magát, így a fürdők, gardrób, konyha –kamra kerültek a zártabb északnyugati és északkeleti frontra, kevesebb számú és kisebb méretű ablakokkal. A nappali bővítménye egyszerre szolgál előszobaként és télikertként is. A költségek szabta korlátok miatt sajnos nem volt lehetőség külön szélfogó kialakítására, így télen, mobil módon lesz megoldva a nappali és előszoba elhatárolása, kivédve azt, hogy a bejárati ajtó nyitásával a hideg az egész belső teret átöblítse. A szerkezettervezés egyik legfontosabb része a megfelelő hőszigetelés megválasztása és a hőhidak kiküszöbölése volt.
- Aljzatban 15 cm hőszigetelés; u = 0,20 W/m²K (umegengedett = 0,5 W/m²K)
- Homlokzaton 20 cm hőszigetelés; u = 0,17 W/m²K (umegengedett = 0,45 W/m²K)
- Padlásfödém: 30 cm hőszigetelés; u = 0,11 W/m²K (umegengedett = 0,25 W/m²K)
- Jó hőszigetelő képességű nyílászárók: u < 1,0 W/m²K (umegengedett = 1,8 W/m²K)
2. ábra Délkeleti homlokzat a tetőtér-beépítés esetén
A teherhordó falak alatt üveghab hőszigetelés biztosítja a talaj felé a hőhídmentes szigetelést, ezzel kiváltható az alap köré és alá behelyezett vízálló műanyag szigetelés. Bár az üveghab előállítása energiaigényes folyamat, de az általunk választott gyártó megújuló energiát (vízenergia) használ az előállítás során, így a gyártás környezetterhelése nem nagy. A nyeregtető hajlásszö- gét a napkollektorok számára szükséges optimális dőlésszög határozta meg, szerencsére ez egybevágott a helyi építési szabályzat előírásával is.
3. ábra Délkeleti homlokzat tetőtér-beépítés nélkül (végleges verzió)
Környezetbarát építőanyagok
Az épület teherhordó falszerkezete és válaszfalrendszere 30, illetve 10 cm vastag mészhomoktéglából épül. A mészhomoktégla előállítása harmadannyi CO2-kibocsátással jár, mint a vázkerámiáké, és jóval nagyobb a hőtároló tömege. Bár hővezetési tényezője rosszabb, 20 cm hőszigeteléssel a falszerkezetek hőátbocsátási tényezőjének különbsége már csekély. (SILKA 30 + 20 cm kőzetgyapot szigetelés u = 0,17 W/m²K, Porotherm 30+20 cm kőzetgyapot szigetelés u = 0,15 W/m²K). Mindemellett a mészhomoktégla kiváló pára- és nedvességgazdálkodó anyag, és az ára is kedvezőbb. Homlokzati hőszigetelésként egyszerűbb kivitelezhetősége miatt a kőzetgyapotra esett a választás. A cellulóz hőszigetelést azért vetettük el, mert alkalmazásával a homlokzat csak homlokzatburkoló elemmel (tégla, kő, fa stb.) alakítható ki, a megrendelők pedig olcsóbb és egyszerűbb vakolt homlokzatot szerettek volna.
4. ábra. A telek délkeleti lejtése szerencsés tájolást tett lehetővé. Kompromisszumok nélkül nyithattuk meg a délkeleti és délnyugati felületeket nyílászárókkal a panoráma irányába.
A nádhőszigetelést pedig azért zártuk ki, mert azonos vastagság mellett a kőzetgyapot kedvezőbb „u” értéket adott. A padlásfödémen (fafödém) cellulóz hőszigetelést alkalmaztunk, amely közönséges fekete újságpapír újrahasznosítása révén készül. A papír a darálást követően pelyhekké alakul, melyet a szigetelő gép könnyen az üregekbe tud fújni, így a szigetelés nem csúszik el, a legapróbb hézagokat is kitölti, garantálva a hőhídmentességet. A cellulóz teljesen természetes, egészségre ártalmatlan. Más használatos szigetelőanya-gokhoz képest nagy hőtárolási kapacitásával is kitűnik. Az alapanyag (fa) tulajdonságait magában hordozza, ezért egyedülállóan alkalmas a nyári hővédelemre. A cellulózszigetelés képes nedvességet felvenni és leadni anélkül, hogy a szigetelőképessége romlana, így igen erősen fokozza a lakásban a komfortérzetet. A párafelvevő képességgel nemcsak vízpárát, hanem más gázokat is képes megkötni, és a szerkezeten keresztül a környezetbe visszadiffundálni. Légáteresztő képessége nem helyettesíti a szellőztetést, de a belső egészséges klíma javítását elősegíti. Nem utolsósorban az egyik legmagasabb tűzállósági fokozattal rendelkezik. A festékek, felületkezelő szerek, ragasztók megválasztásánál környezetbarát, nem mérgező anyagok alkalmazására törekedtünk a hagyományos termékek helyett.
Energiatudatos épületgépészet
Az épület fűtési hőigénye 37 kWh/m²/év. A fűtést egy 12 kW-os fatüzelésű kazán biztosítja. A házban légfűtés valósul meg. A nappali, a konyha és az étkező fűtését közvetlenül a kazán biztosítja, a szülői hálóba, illetve a gyermek lakrészébe légcsatornán jut el a meleg levegő, közvetlenül a kazánból. A HMV-t gravitációs napkollektoros rendszer biztosítja (70%). Az esővizet egy 20 m³ méretű tárolóba vezetjük. Ez a víz használható WC-öblítésre és öntözésre. A szürkevízhálózat önálló rendszer, párhuzamos a hideg vízével.
A munka szakmai tartalma kapcsolódik a „Minőségorientált, összehangolt oktatási és K+F+I stratégia, valamint működési modell kidolgozása a Műegyetemen” c. projekt szakmai célkitűzéseinek megvalósításához. A projekt megvalósítását az ÚMFT TÁMOP-4.2.1/B-09/1/KMR-2010-0002 programja támogatja.
This work is connected to the scientific program of the „ Development of quality-oriented and harmonized R+D+I strategy and functional model at BME” project. This project is supported by the New Hungary Development Plan (Project ID: TÁMOP-4.2.1/B-09/1/KMR-2010-0002).

1. ábra Alaprajz
2. ábra Délkeleti homlokzat a tetőtér-beépítés esetén
3. ábra Délkeleti homlokzat tetőtér-beépítés nélkül (végleges verzió)
4. ábra. A telek délkeleti lejtése szerencsés tájolást tett lehetővé. Kompromisszumok nélkül nyithattuk meg a délkeleti és délnyugati felületeket nyílászárókkal a panoráma irányába.